NCC 2022 Volume One - Building Code of Australia Class 2 to 9 buildings
Search the National Construction Code editions
F6
Part F6 Light and ventilationThis Part is intended to ensure that building occupants have access to natural and artificial lighting, and fresh air, to prevent illness, injury or loss of amenity. This part also includes provisions for the location of sanitary compartments to reduce health risks and the spread of odours, airlocks and carpark and kitchen local exhaust ventilation.
F6O1 aims to safeguard occupants from illness, injury or loss of amenity due to inadequate lighting or lack of ventilation within a building.
A space within a building used by occupants is to be provided with openings to admit natural light consistent with its function or use.
F6F1 requires that a buildingspace must have openings providing enough natural lightfor a room commensurate with its purpose.
A space within a building used by occupants is to be provided with artificial lighting consistent with its function or use which, when activated in the absence of suitable natural light, will enable safe movement.
F6F2 mandates that a space within a building used by occupants must be provided with artificial lighting suitable for its intended function or use. The provision aims to ensure that in the absence of adequate natural light, artificial lighting will facilitate safe movement within the space.
A space used by occupants within a building is to be provided with adequate ventilation consistent with its function or use.
F6F3 requires that a building space used by occupants must have ventilation that provides adequate air, so the room can fulfil its purpose. “Adequate air” includes both quantity and quality.
The building and its location may impose constraints on the quality of the ventilation air.
Examples
A building’s location may impose constraints on the quality of the ventilation air such as when the building is in a central business district. Here, even locating intakes at the highest point on the building could still draw in significant quantities of vehicle exhaust fumes. The air may not be totally “fresh”. None the less, efforts must be made to make sure the air is of adequate quality.
Ventilation standards are influenced by many factors, including:
Some of the primary problems, which a ventilation system must attempt to overcome, include:
Sufficient openings must be provided and distributed in a building, appropriate to the function or use of that part of the building so that natural light, when available, provides an average daylight factor of not less than 2%.
F6P1 only applies to a Class 2, 3 or 9 building, or a Class 4 part of a building.
F6P1 deals with natural light in a Class 2, 3 or 9 building, or a Class 4 part of a building.
F6P1 nominates a minimum average daylight factor for rooms provided with natural light. Note that Verification Method F6V3 provides a method by which the average daylight factor may be calculated.
The level of natural light must be appropriate to the function of each part of the building (this differs from the F6P2 requirement for artificial light).
Artificial lighting must be installed to provide an illuminance of not less than 20 lux appropriate to the function or use of the building to enable safe movement by occupants.
F6P2 relates required lighting levels to the use of each part of the building. Unlike F6P1 with regard to natural light, F6P2 does not include the concept of distribution.
The level of artificial light must be appropriate to the use of the building to enable safe movement by occupants (this differs from the F6P1 requirement for natural light). For example, in a movie theatre a lower level of lighting may be appropriate while a movie is being screened, however at the beginning and end of the movie, when occupants are entering and exiting the theatre, the minimum lighting level of 20 lux may be appropriate.
A space in a building used by occupants must be provided with means of ventilation with outdoor air which will maintain adequate air quality.
F6P3 requires a building’s ventilation system to include the supply of outdoor air.
A mechanical air-handling system installed in a building must control—
Where a mechanical air-handling system is installed, F6P4 requires it to achieve control with regard to the following:
Contaminated air must be disposed of in a manner which does not unduly create a nuisance or hazard to people in the building or other property.
F6P5 requires that any contaminated air be disposed of so that it does not cause any nuisance or hazard to:
For a Class 2, 3, 5, 6, 9b or 9c building or Class 4 part of a building, compliance with F6P3 and F6P4(a) is verified when it is determined that the building under typical conditions in use is provided with sufficient ventilation with outdoor air such that contaminant levels do not exceed the limits specified in Table F6V1.
| Pollutant | Averaging time | Maximum air quality value |
|---|---|---|
| Carbon dioxide, CO2 | 8 hours | 850 ppm Note 1 |
| Carbon monoxide, CO | 15 minutes | 90 ppm |
| Carbon monoxide, CO | 30 minutes | 50 ppm |
| Carbon monoxide, CO | 1 hour | 25 ppm |
| Carbon monoxide, CO | 8 hours | 10 ppm |
| Formaldehyde, CH2O | 30 minutes | 0.1 mg/m3 |
| Nitrogen dioxide, NO2 | 1 year | 40 μg/m3 (0.0197 ppm) Note 2 |
| Nitrogen dioxide, NO2 | 1 hour | 200 μg/m3 (0.0987 ppm) |
| Ozone, O3 | 8 hour, daily maximum | 100 μg/m3 (0.0473 ppm) |
| Particulate matter, PM2.5 | 1 year | 10 μg/m3 |
| Particulate matter, PM2.5 | 24 hour (99th percentile) | 25 μg/m3 |
| Particulate matter, PM10 | 1 year | 20 μg/m3 |
| Particulate matter, PM10 | 24 hour (99th percentile) | 50 μg/m3 |
| Total volatile organic compounds | 1 hour | 500 μg/m3 |
F6V1 is a means of verifying if a proposed ventilation system for a Class 2, 3, 4, 6, 9b or 9c building achieves the minimum level of ventilation required by F6P3 and F6P4(a).
It is not compulsory for a designer to use F6V1. The designer has the choice of using:
If F6V1 is used to verify compliance, it must be demonstrated that the building is sufficiently ventilated with outdoor air such that contaminant levels do not exceed the limits in Table F6V1.
For a Class 7a building, compliance with F6P3 and F6P4(a) is verified when it is determined that the building is provided with sufficient ventilation with outdoor air such that carbon monoxide exposure levels do not exceed the limits specified in Table F6V2.
| Concentration (ppm) | Total exposure duration per day |
|---|---|
| 100 | Not to be exceeded |
| 90 | 15 minutes |
| 60 | 1 hour |
| 30 | 8 hours |
Various government work health and safety regulations specify workplace exposure limits for airborne contaminants in the workplace.
F6V2 is a means of verifying if a proposed ventilation system for a Class 7a building achieves the minimum level of ventilation required by F6P3 and F6P4(a).
It is not compulsory for a designer to use F6V2. The designer has the choice of using:
If F6V2 is used to verify compliance, it must be demonstrated that the building is sufficiently ventilated with outdoor air such that carbon monoxide exposure levels do not exceed the limits in Table F6V2.
Compliance with F6P1 is verified for the provision of natural light when the average daylight factor for each window is determined in accordance with the formula:
F6V3 only applies to—
The average daylight factor (ADF) is used as the measure of the general illumination from outdoor natural light within a room. Where two or more windows in a room face different obstructions, or differ in transmittance, the ADF should be found separately for each window by adding the ADF for each window together to get the total ADF for the room.
W is the net area of the glazing panel (m2). This excludes the glazing frame and only includes the transparent or translucent elements.
A is the total area of the internal surfaces (m2). This includes the total area ofthe ceiling, floor andwalls, including windows.
T is the diffuse light transmittance of the glazing. The measurement of light transmittance is specified in the Technical Protocols and Procedures Manual for Energy Rating of Fenestration Products of the Australian Fenestration Rating Council. Typical examples of light transmittance of glazing materials are given in the table below.
| Material | Diffuse light transmittance |
| Clear 6mm glass | 0.87 |
| Tinted 6mm glass (bronze) | 0.50 |
| Tinted 6mm glass (grey) | 0.44 |
| Tinted 6mm glass (green) | 0.75 |
| Strongly reflecting 6mm glass | 0.78 |
| Double glazed unit (x2 6 mm clear glass) | 0.76 |
θ is visible sky angle in degrees, measured in a vertical plane normal to the glass from the centre of the window (i.e. the window reference point) as shown in the figure below. The determination of this angle is to take into account objects such as shading projections, eaves, window reveals, fences, adjoining buildings, structures and the like. Figure F6V3 shows an example of a scenario when θ is measured.
Figure F6V3: Angle of visible sky
R is the area-weighted average reflectance area of the internal surfaces. Typical examples of reflectance of light values of materials are given in Table F6V3b.
| Material | Reflectance |
| Paving | 0.20 |
| Earth | 0.20 |
| Granite | 0.20 |
| Brickwork (red) | 0.30 |
| Concrete | 0.40 |
| Carpet (cream) | 0.40 |
| Carpet (deep colours) | 0.10 |
| Wood (unfinished pine) | 0.20 |
| Paint (white) | 0.85 |
| Paint (cream) | 0.81 |
| Paint (light grey) | 0.68 |
| Paint (mild grey) | 0.45 |
To clarify that Part F6, and Parts G6 and I3, if applicable, will satisfy the requirements of F6P1 to F6P5.
Where a solution is proposed to comply with the Deemed-to-Satisfy Provisions, F6D1 clarifies that compliance with F6D2 to F6D12, and Parts G6 and I3, if applicable, will achieve compliance with F6P1 to F6P5.
Where a Performance Solution is proposed, the relevant Performance Requirements must be determined in accordance with A2G2(3) and A2G4(3) as applicable. (See commentary on Part A2).
Natural light must be provided in:
To specify the rooms in various classes of buildings where natural light is required.
See F6F1 and F6P1 for information on the reasonsfor the BCA natural light provisions.
The provision of natural light is substantially a health and amenity issue. It is considered of particular importance in all “living” and “sleeping” areas in residential buildings occupied by people for an extended period of time. The BCA consistently assumes that this is the case with Class 2 buildings and Class 4 parts, but not with Class 3 buildings.
Occupants of Class 3 and Class 9a buildings do not reside in the same building for an extended period of time. F6D2 extends this assumption to the “living” areas (shared and unshared) of such buildings. For this reason, the BCA only requires the provision of natural light to sleeping areas in Class 3 and Class 9a buildings.
F6D2(b) assumes that in Class 3 buildings the occupants spend more time in their “sleeping” accommodation than they do in “living” areas. This is usually the case in Class 2 buildings and Class 4 parts.
F6D2(c), with regard to Class 9a and 9c buildings, takes account of the fact that occupants will generally be in their beds throughout the day and natural light will be important to them.
It is considered desirable that school and pre-school children are able to view the outside environment, and work or play using natural light. Accordingly, buildings such as kindergartens and schools must provide natural light to playrooms and classrooms.
To specify the requirements for the size and location of windows, including roof lights to provide required natural light.
A window includes roof lights, glassed louvres and glazed doors (see definition in Schedule 1).
F6D3(1)(a) sets out the requirement for natural light provided by windows other than roof lights. F6D3(1)(b) sets out the requirement for natural light provided by roof lights.
A roof light generally receives greater exposure to sunlight than a window because of its orientation to the sky and consequently, the size of a roof light as a percentage of the floor area served is permitted to be smaller than for a window serving the same floor area.
To achieve the requirements for natural light when both windows and roof lights are provided, a proportional combination of F6D3(1)(a) and (b) can be used through F6D3(1)(c). This is explained in Figure F6D3a below.
Figure F6D3a: Method for determining proportional combination of windows and roof lights
Area of the room which requires natural light is 100 m2. No natural light borrowed from adjoining rooms.
Required windows to provide natural light must have a light transmitting area of at least 10% of the floor area. 10% of 100 m2 = 10 m2
Or, roof lights to provide natural light must have a light transmitting area of at least 3% of the floor area. 3% of 100 m2 = 3 m2
In the formula below, 3% of the floor area is expressed as the fraction 0.03 and 10% of the floor area is expressed as the fraction 0.1.
Area of room covered by the roof light = (Area of roof light)/ 0.03
Required window(s) area = [(Floor area) – (Area covered by the roof light)] / 10
If the roof light = 1 m2
Area of room covered by the roof light = (1 m2 / 0.03) = 33.33 m2 Required window(s) area = (100 m2 – 33.33 m2) / 10 = 6.67 m2
Area of room covered by the window(s)= (Area of window(s)) / 0.1
Required roof light area = [(Floor area) – (Area covered by the window)]/ 33.33
If the window= 5 m2
Area of room covered by the window(s)= (5 m2 / 0.1 m2) = 50 m2 Required roof lights area = (100 m2 – 50 m2) / 33.33 m2 = 1.5 m2
For the purposes of Figure F6D3a, a window excludes a roof light.
The same proportional calculation principle applies if—
All windows, both required and non-required, must comply with the various requirements of the BCA’s fire-safety provisions, such as C4D3 openings in external walls, and S5C16 for roof lights.
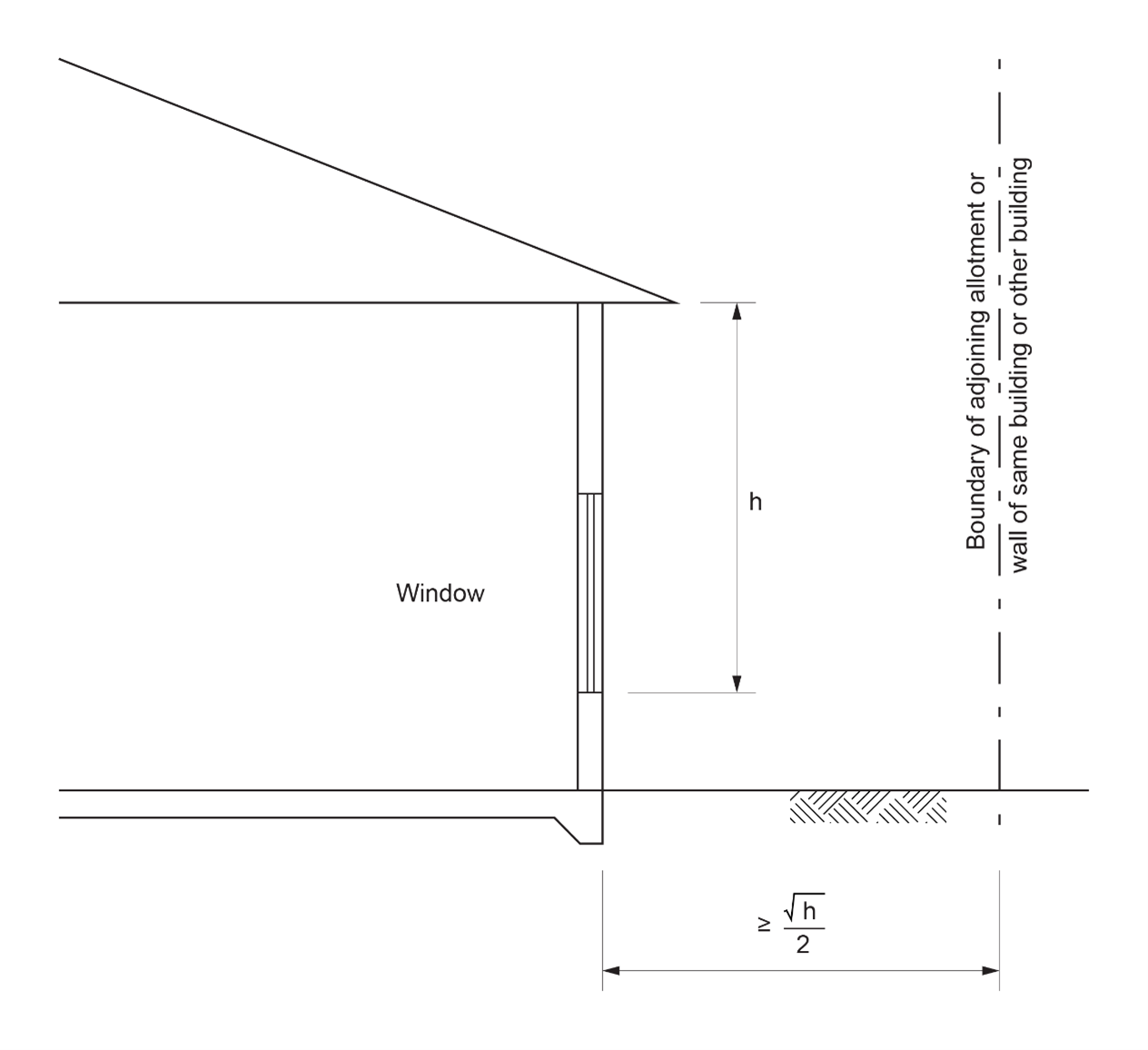
F6D3(2) does not prohibit windows closer to the boundary than one metre (or three metres in the case of a patient-care area in a Class 9a building). However, if a window is located within these distances, F6D3(2) does not allow it to be considered as providing required natural light to the subject room.
It should be noted that F6D3(2) does not apply to Class 9c buildings. F6D3(3) contains specific provisions for these buildings.
Figure F6D3b illustrates the method of measuring the distance of the window from:
Figure F6D3b: Elevation showing method of measuring distance of window from boundary
F6D3(3) contains requirements for Class 9c buildings. The requirement for the windowsill to be not more than 1 m above floor level and at least 3 m from an adjoining allotment, another building or wall is to maintain amenity for residents who spend a significant amount of time sitting on chairs or lying in bed. Figure F6D3c illustrates the method of measuring these distances.
Figure F6D3c: Illustration of window sill in an aged care building
F6D3(4) contains requirements for Class 9b early childhood centres. The well-being of children in these types of buildings is enhanced through improved interaction with the outdoor environment by the provision of 50% of window sills in children’s rooms required to be located not more than 500 mm above the floor level.
The following is not considered a children’s room:
To allow natural light to be “borrowed” from an adjoining room.
F6D4 applies only to a room in:
For these Classes, it is sometimes acceptable for a room’s required natural light to be “borrowed” from an ad joining room (i.e. an adjoining room’s light can be used to help make up the total amount of natural light required in the subject room).
The use of borrowed light is acceptable if the provisions of F6D4 are applied to the subject room and to the total area of each relevant room.
Any borrowed natural light must be from an adjoining room over which occupants of the subject room have some control. F6D4(1)(a) therefore requires that the adjoining room be within the same sole-occupancy unit or be an enclosed verandah on common property. As a consequence, the required natural light cannot be from another sole-occupancy unit.
Direct natural light provided from another source is intended to mean light from a window or roof light in the subject room. As the provision relates to natural light obtained from an adjoining room, ‘another source’ refers to direct natural light provided to the subject room which does not meet the required allowance of either 3% or 10% of the floor area for roof lights and windows respectively. By not meeting the required amount of natural light, the ‘direct natural light from another source’ can be used as a supplement to the natural light required from an adjoining room.
To borrow natural light from another room, F6D4(1)(b) allows light to pass through glazed panels or openings from an adjoining room which, under F6D4(1)(c), must have windows, roof lights or a combination of windows and roof lights of a minimum size in proportion to the combined floor areas of both rooms. The minimum size of the glazed panels or openings, and the minimum size of the windows to the adjoining room, are illustrated in Figure F6D4.
If a doorway is used as an opening to obtain light from an adjoining room, any door is required to transmit natural light directly from outside a building to the room concerned when in the closed position (see Figure F6D4).
The area of openings needed to transmit natural light from an adjoining room may be reduced proportionally to the size of any openings in the subject room which transmit natural light directly from the outside.
Figure F6D4: Method for determining areas of openings for borrowed light
The same principle for Opening A in Figure F6D4 can be applied for roof lights by substituting the required 10% opening in respect to the combined floor area with 3% of the combined floor area. It is also permitted to use a proportional combination of windows and roof lights. See the example in the comments on F6D3 for an explanation.
To specify the location and other requirements for required artificial lighting.
Artificial lighting is required where it is necessary to minimise any hazard to occupants during an emergency evacuation.
F6D5(1)(a) sets out those places where artificial lighting is always required. However, it does not require such lighting to be illuminated at all times.
F6D5(1)(b) sets out those places where artificial lighting is required if the standard of natural light required by F6D3 is unavailable, and the periods of occupation of the areas, or the use of the space, will create an undue hazard during an evacuation.
Determination of whether or not the periods of occupation of the specified areas will create an undue hazard during an evacuation is a judgement, which requires a “performance-type” assessment.
Class 4 parts of buildings are subject to F6D5(1)(b) only with regard to wet areas and airlocks. (Any required stairways and the like in the rest of the building, which contains the Class 4 part, are required to be artificially lit under F6D5(1)(a)).
Class 2 buildings are subject to F6D5(1)(b) with regard to wet areas, airlocks and any common areas such as stairways, etc. used in common by occupants.
Class 3 and Class 5–9 buildings are subject to F6D5(1)(b) with regard to all rooms frequently occupied, and all corridors, stairways and similar circulation routes and paths of egress. Unless they are “frequently occupied”, wet areas (including those in Class 3 buildings) are not subject to F6D5(1)(b).
Apart from the “performance-type” judgement regarding the location of artificial lighting in those areas specified in F6D5(1)(b), the remainder of the requirements are contained in the AS/NZS 1680.0 specified in F6D5(2).
F6D5(3) gives a concession for compliance with F6D5(1) in specific buildings which have lower levels of lighting as part of their normal operation. For example, the lighting levels specified in AS/NZS 1680.0 would be inappropriate during the screening of a movie in a cinema or may lead to damage of artworks in a gallery.
A habitable room, office, shop, factory, workroom, sanitary compartment, bathroom, shower room, laundry and any other room occupied by a person for any purpose must have—
The reference to AS/NZS 3666.1 is deleted from the BCA in NSW, as the need to comply with this standard is regulated in the Public Health Regulation 2012, under the Public Health Act 2010.
A habitable room, office, shop, factory, workroom, sanitary compartment, bathroom, shower room, laundry and any other room occupied by a person for any purpose must have—
A habitable room, office, shop, factory, workroom, sanitary compartment, bathroom, shower room, laundry and any other room occupied by a person for any purpose must have—
To state the natural and mechanical ventilation requirements for rooms and buildings.
The specified rooms and buildings, and any other room occupied by a person for any purpose, must be provided with either:
If a room or building is served by a mechanical ventilation or air-conditioning system for heating or cooling purposes and the system does not provide ventilation in accordance with AS 1668.2, then the room or building must also be provided with natural ventilation complying with F6D7. Natural ventilation would therefore need to be provided to rooms served by a typical domestic type wall mounted air-conditioning split system. In addition, F6D6 does not preclude natural ventilation serving a room or building if it is also served by a mechanical ventilation or air-conditioning system compliant with AS 1668.2.
To specify the requirements for the size and location of windows providing required natural ventilation.
F6D7 requires that permanent openings, windows, doors or other openable means provide natural ventilation. It also deals with the size of such openings, and the locations to which such openings must open.
F6D7(1)(b)(i) requires a judgement regarding what is “suitably sized”; and F6D7(1)(b)(ii) requires a judgement regarding what is “open”.
F6D7 does not require any of the required natural ventilation to be “fixed ventilation” or “permanent openings” as against “devices which can be opened”. The building proponent can make the decision.
If the natural ventilation openings are used only for ventilation purposes, roller shutters and doors can cover the openings if they achieve the performance standard in F6D7(1). However, if the openings are also used for egress purposes, they must comply with the requirements of provisions such as D3D24 and D3D26.
Under F6D7(2), the option of using prescribed natural ventilation opening sizes for Class 8 electricity network substations is removed. The prescribed ventilation openings are not conducive to Class 8 electricity network substations as they may allow excessive dust, humidity and other weather conditions that are detrimental to the sensitive and hazardous equipment used in these buildings.
Natural ventilation to a room may come through a window, opening, door or other device from an adjoining room (including an enclosed verandah) if both rooms are within the same sole-occupancy unit or the enclosed verandah is common property, and—
To allow natural ventilation to be “borrowed” from adjoining rooms.
F6D8(a) applies only to:
Except for Class 8 electricity network substations, F6D8(b) applies only to Class 5–9 buildings.
It is sometimes acceptable for a room’s required natural ventilation to be “borrowed” from an adjoining room (i.e. an adjoining room’s ventilation can be used to help make up the total amount of ventilation required).
The use of borrowed ventilation is acceptable if the provisions of F6D8 are applied to the subject room and to the total area of each relevant room.
Any borrowed natural ventilation to a room must be from a room over which the occupants have some control. F6D8(a) therefore requires that the adjoining room be:
In a Class 2 or Class 3 building or Class 4 part, this requirement means that the natural ventilation cannot be from another sole-occupancy unit.
F6D8(a) and (b) allows a window, an opening, a door, or the like, to be used to “borrow” ventilation air from an adjoining room. The minimum area required for ventilation in residential buildings is illustrated in Figure F6D8.
In Class 5–9 buildings, the area of ventilation opening required under F6D8(b) is similar to that required for residential buildings, except that:
Under F6D8(c), the area of openings needed to transfer natural ventilation borrowed from an adjoining room may be reduced proportionally to the size of any window or other opening in the room which receives natural ventilation directly from the outside.
Figure F6D8: Method for determining areas of openings for borrowed ventilation
A sanitary compartment must not open directly into—
To minimise the impact of unpleasant smells.
While F6D9 prohibits toilets opening directly into specified areas, F6D10 sets out how toilets can serve those areas by using:
The odours from toilets can be unpleasant and so it is desirable to minimise their impact on adjacent areas such as:
The exclusions include sleeping areas other than Class 3 dormitories. In houses, flats, motels and hotels the odours are usually generated by the resident/s, whereas, in a dormitory there is a high likelihood that:
Some other exclusions include kindergartens because staff need to keep children under continuous observation and open spectator stands because these are generally open to the air and therefore inherently well ventilated.
If a sanitary compartment is prohibited under F6D9 from opening directly to another room—
To specify requirements for airlocks or mechanical ventilation where toilets open directly into other rooms.
While F6D9 prohibits toilets opening directly into specified areas, F6D10 sets out how toilets can serve those areas by using:
It is desirable to minimise toilet odours in particular areas. See F6D9 and F6D10 for airlock and mechanical exhaust ventilation where a builder wishes to locate a toilet close to, or open directly into, the areas specified in F6D9.
Every storey of a carpark, except an open-deck carpark, must have—
To specify ventilation requirements for carparks, to ensure car fumes are adequately removed.
F6D11 does not apply to an open-deck carpark because such carparks are provided with adequate, permanent, natural ventilation.
AS 1668.2 contains mechanical ventilation requirements for the Deemed-to-Satisfy Provisions.
A commercial kitchen must be provided with a kitchen exhaust hood complying with AS 1668.1 and AS 1668.2 where—
To minimise the spread of cooking odours and fire from commercial kitchens.
The aim of F6D12 is to:
The figures in F6D12(a) relate to the size of any electrical or gas cooking apparatus, which may cause these problems.
The figures in F6D12(b) relate to the ratio of electrical or gas cooking apparatuses to room size, which may cause these problems.
The Deemed-to-Satisfy Provisions require exhaust hoods to comply with both AS 1668.1 and AS 1668.2.