NCC 2022 Volume One - Building Code of Australia Class 2 to 9 buildings
Classification
Building class 1a Building class 1b Building class 2 Building class 3 Building class 4 Building class 5 Building class 6 Building class 7a Building class 7b Building class 8 Building class 9a Building class 9b Building class 9c Building class 10a Building class 10b Building class 10c

Filter

Classification
Building class 1a Building class 1b Building class 2 Building class 3 Building class 4 Building class 5 Building class 6 Building class 7a Building class 7b Building class 8 Building class 9a Building class 9b Building class 9c Building class 10a Building class 10b Building class 10c

J4

Part J4 Building fabric

Part J4 Building fabric

Introduction to this Part

This Part contains Deemed-to-Satisfy Provisions for compliance with Part J1. It sets out provisions for the building envelope including roofs, ceilings, roof lights, walls, glazing and floors.

Notes

From 1 May 2023 to 30 September 2023 Section J of NCC 2019 Volume One Amendment 1 may apply instead of Section J of NCC 2022 Volume One. From 1 October 2023 Section J of NCC 2022 Volume One applies.

Notes: New South Wales Section J Energy Efficiency

  1. For a Class 2 building or a Class 4 part of a building, where a relevant development consent or an application for a complying development certificate requires compliance with a BASIX Single Dwelling or Multi Dwelling Certificate issued under Version 3.0 or earlier, NSW Section J of NCC 2019 Volume One Amendment 1 applies.
  2. For a Class 2 building or a Class 4 part of a building, where a relevant development consent or an application for a complying development certificate requires compliance with a BASIX Single Dwelling or Multi Dwelling Certificate issued under Version 4.0 or later, Section J of NCC 2022 Volume One applies.
  3. For a Class 2 building or a Class 4 part of a building, where a relevant development consent or an application for a complying development certificate requires compliance with a BASIX Alterations and Additions Certificate, NSW Section J of NCC 2019 Volume One Amendment 1 applies.
  4. For a Class 3 building or Class 5 to 9 building:
    1. From 1 May 2023 to 30 September 2023 NSW Section J of NCC 2019 Volume One Amendment 1 may apply instead of Section J of NCC 2022 Volume One.
    2. From 1 October 2023 Section J of NCC 2022 Volume One applies.

Notes: Tasmania Section J Energy Efficiency

In Tasmania, for a Class 2 building and Class 4 part of a building, Section J is replaced with Section J of BCA 2019 Amendment 1.

Deemed-to-Satisfy Provisions

(1) Where a Deemed-to-Satisfy Solution is proposed, Performance Requirements J1P1 to J1P4 are satisfied by complying with—

  1. J2D2; and
  2. J3D2 to J3D15; and
  3. J4D2 to J4D7; and
  4. J5D2 to J5D8; and
  5. J6D2 to J6D13; and
  6. J7D2 to J7D9; and
  7. J8D2 to J8D4; and
  8. J9D2 to J9D5.

NSW J4D1 Deemed-to-Satisfy Provisions2019: J1.0

Delete subclause J4D1(1) and insert J4D1(1) as follows:

(1) Where a Deemed-to-Satisfy Solution is proposed, Performance Requirements NSW J1P1 to NSW J1P7 are satisfied by complying with—

  1. NSW J2D2; and
  1. NSW J3D2 to J3D10; and
  2. NSW J4D2 to J4D7; and
  3. NSW J5D2 to J5D8; and
  4. NSW J6D2 to J6D13; and
  5. NSW J7D2 to J7D9; and
  6. J8D2 to NSW J8D4; and
  7. J9D2 to J9D5.

(2) Where a Performance Solution is proposed, the relevant Performance Requirements must be determined in accordance with A2G2(3) and A2G4(3) as applicable.

J4D1 Deemed-to-Satisfy Provisions

See comments for J2D1.

NCC Blurbs

(1) The Deemed-to-Satisfy Provisions of this Part apply to building elements forming the envelope of a Class 3 and Class 5 to 9 building.

(2) NSW J4D3, applies to building elements forming the envelope of a sole-occupancy unit in a Class 2 building and a Class 4 part of a building.

(3) (2) only applies to thermal insulation in a sole-occupancy unit in a Class 2 building and a Class 4 part of a building where a development consent specifies that the insulation is to be provided as part of the development.

NCC Title
Application of Part
NCC State
NSW
NCC Variation Type
Replacement
NCC SPTC Current
Application of Part

The Deemed-to-Satisfy Provisions of this Part apply to building elements forming the envelope of a Class 2 to 9 building other than J4D3(5), J4D4, J4D5, J4D6 and J4D7 which do not apply to a Class 2 sole-occupancy unit or a Class 4 part of a building.

To facilitate the efficient use of energy appropriate for Class 2 to 9 buildings that are conditioned or likely to be conditioned.

J4D2 Application of Part

The Deemed-to-Satisfy Provisions of Part J4 apply to building elements that form part of the envelope, where the envelope separates a conditioned space or habitable room from the exterior of the building or a non-conditioned space. This includes roofs, walls, glazing and floors as per the definition of “fabric”.

Some Class 6, 7, 8 and 9b buildings that are not a conditioned space by definition may be excluded from controls for building fabric. Class 6 and 9b buildings cover a wide range of uses and some could reasonably be expected to be air- conditioned at some time in the future while others may not. For example, it may be unlikely that a school gymnasium will be air-conditioned while classrooms may well be when funds are available. Some States are already retrofitting air- conditioning to schools. Note that the phrase “likely by the intended use of the space to be air-conditioned” is in the definition of a conditioned space.

The external elements of an atrium or solarium that is not a conditioned space may also be excluded. The atrium may be attached to a Class 5 building and would otherwise attract some of the requirements appropriate for a Class 5 building. Again, either there is no energy saving to be made by thermally treating the elements, or the saving is below the minimum threshold and so not cost-effective.

The Deemed-to-Satisfy Provisions of Part J4 do not apply to Class 8 electricity network substations as these buildings are not required to be air-conditioned for the purposes of Section J. See the definition for air-conditioning. The air-conditioning systems of these buildings are instead designed to maintain the efficient operation of sensitive electrical equipment.

NCC Blurbs

(1) Where required, insulation must comply with AS/NZS 4859.1 and be installed so that it—

  1. abuts or overlaps adjoining insulation other than at supporting members such as studs, noggings, joists, furring channels and the like where the insulation must be against the member; and
  2. forms a continuous barrier with ceilings, walls, bulkheads, floors or the like that inherently contribute to the thermal barrier; and
  3. does not affect the safe or effective operation of a service or fitting.

(2) Where required, reflective insulation must be installed with—

  1. the necessary airspace to achieve the required R-Value between a reflective side of the reflective insulation and a building lining or cladding; and
  2. the reflective insulation closely fitted against any penetration, door or window opening; and
  3. the reflective insulation adequately supported by framing members; and
  4. each adjoining sheet of roll membrane being—
    1. overlapped not less than 50 mm; or
    2. taped together.

(3) Where required, bulk insulation must be installed so that—

  1. it maintains its position and thickness, other than where it is compressed between cladding and supporting members, water pipes, electrical cabling or the like; and
  2. in a ceiling, where there is no bulk insulation or reflective insulation in the wall beneath, it overlaps the wall by not less than 50 mm.

(4) Roof, ceiling, wall and floor materials, and associated surfaces are deemed to have the thermal properties listed in Specification 36.

(5) The required Total R-Value and Total System U-Value, including allowance for thermal bridging, must be—

  1. calculated in accordance with AS/NZS 4859.2 for a roof or floor; or
  2. determined in accordance with Specification 37 for wall-glazing construction; or
  3. determined in accordance with Specification 39 or Section 3.5 of CIBSE Guide A for soil or sub-floor spaces.

Notes

Where required is deemed to refer to “Where a development consent specifies that insulation is to be provided as part of the development.”.

NCC Title
Thermal construction—general
NCC State
NSW
NCC Variation Type
Replacement
NCC SPTC Current
Thermal construction—general

(1) Where required, insulation must comply with AS/NZS 4859.1 and be installed so that it—

  1. abuts or overlaps adjoining insulation other than at supporting members such as studs, noggings, joists, furring channels and the like where the insulation must be against the member; and
  2. forms a continuous barrier with ceilings, walls, bulkheads, floors or the like that inherently contribute to the thermal barrier; and
  3. does not affect the safe or effective operation of a service or fitting.

(2) Where required, reflective insulation must be installed with—

  1. the necessary airspace to achieve the required R-Value between a reflective side of the reflective insulation and a building lining or cladding; and
  2. the reflective insulation closely fitted against any penetration, door or window opening; and
  3. the reflective insulation adequately supported by framing members; and
  4. each adjoining sheet of roll membrane being—
    1. overlapped not less than 50 mm; or
    2. taped together.

(3) Where required, bulk insulation must be installed so that—

  1. it maintains its position and thickness, other than where it is compressed between cladding and supporting members, water pipes, electrical cabling or the like; and
  2. in a ceiling, where there is no bulk insulation or reflective insulation in the wall beneath, it overlaps the wall by not less than 50 mm.

(4) Roof, ceiling, wall and floor materials, and associated surfaces are deemed to have the thermal properties listed in Specification 36.

(5) The required Total R-Value and Total System U-Value, including allowance for thermal bridging, must be—

  1. calculated in accordance with AS/NZS 4859.2 for a roof or floor; or
  2. determined in accordance with Specification 37 for wall-glazing construction; or
  3. determined in accordance with Specification 39 or Section 3.5 of CIBSE Guide A for soil or sub-floor spaces.

To outline the general requirements to insulate a building’s fabric and the inherent thermal properties of roof, ceiling, wall and floor materials.

Testing

J4D3(1) requires that insulation must be tested and labelled in accordance with AS/NZS 4859.1. 

Installation

Care should be taken when installing insulation to ensure a continuous envelope between a conditioned space and either the outside environment or a non-conditioned space.

Insulation is to be fitted tightly to each side of framing members but need not be continuous over the framing member.

The insulation requirements in J4D4, J4D6 and J4D7 are calculated for parts of the roof, walls or floor that are clear of any framing members. The means of achieving the required total R-Value must be in accordance with J4D3(5).

The provisions also state that the installation of insulation should not interfere with the safety or performance of domestic services and fittings such as heating flues, recessed light fittings, transformers for low voltage lighting, gas appliances and general plumbing and electrical components. This includes providing appropriate clearance as detailed in relevant legislation and referenced standards such as for electrical, gas and fuel oil installations. Low voltage lighting transformers should not be covered by insulation and be mounted above the insulation rather than on the ceiling. Expert advice may also be needed on how much bulk insulation can be placed over electrical wiring.

Note that the addition of insulation to other building elements may alter the fire properties of those elements. Re-testing or re-appraisal of these elements may be required.

Airspace adjoining reflective insulation

For reflective insulation to achieve its tested R-Value, the airspace adjoining the insulation needs to be a certain width. This width varies depending on the particular type of reflective insulation and the R-Value to be achieved.

Where the width of airspace is to be achieved in a wall cavity or the like, care should be taken to ensure compliance with all other applicable BCA provisions. For example, the provisions relating to weatherproofing masonry may require a greater width of cavity.

Compression of bulk insulation

The R-Value of bulk insulation is reduced if it is compressed. The allocated space for bulk insulation is therefore to allow the insulation to be installed so that it maintains its correct thickness unless exempted such as at wall studs. This is particularly relevant to wall and cathedral ceiling framing whose members can only accommodate a limited thickness of insulation. In some instances, larger framing members or thinner insulation material, may be necessary to ensure that the insulation achieves its required R-Value.

Artificial cooling

Artificial cooling of buildings in some climates can cause condensation to form inside the layers of the building envelope. Such condensation can cause significant structural or cosmetic damage to the envelope before it is detected. Associated mould growth may also create health risks to the occupants. Effective control of condensation is a complex issue. In some locations a fully sealed vapour barrier may need to be installed on the more humid, or generally warmer, side of the insulation.

Thermal bridging

A thermal bridge, also called a cold bridge or heat bridge, is an area or component of the fabric which has higher thermal conductivity than the surrounding materials, creating a path of least resistance for heat transfer. Thermal bridges can significantly reduce the thermal performance of a facade, increasing energy use from a building’s heating and cooling systems. If not accounted for, they can also cause unwanted condensation and comfort issues in a building. In line with the existing requirements of AS/NZS 4859.1, J4D3(5) specifies that the means of achieving the required Total R-Value must be determined in accordance with AS/NZS 4859.2. This standard contains a calculation method that takes into account the impact of thermal bridges on the thermal performances of a facade. Depending on the extent of the thermal bridges within a facade, extra insulation may need to be added, or thermal breaks installed in order for a facade to be compliant.

(1) A roof or ceiling must achieve a Total R-Value greater than or equal to—

  1. in climate zones 1, 2, 3, 4 and 5, R3.7 for a downward direction of heat flow; and
  2. in climate zone 6, R3.2 for a downward direction of heat flow; and
  3. in climate zone 7, R3.7 for an upward direction of heat flow; and
  4. in climate zone 8, R4.8 for an upward direction of heat flow.

(2) In climate zones 1, 2, 3, 4, 5, 6 and 7, the solar absorptance of the upper surface of a roof must be not more than 0.45.

To clarify the minimum Total R-Value that is to be achieved by a roof or ceiling, according to the building classification and climate zone in which it is located.

J4D4 covers roofs, including their ceilings, and any ceiling that is part of an intermediate floor being part of the building’s envelope, or where there is no ceiling.

J4D4(1) details the insulation properties and minimum Total R-Value required of a roof or ceiling.

Part or all of this may be provided by the roof construction itself and any inherent insulating property of the roof and airspaces reduces the amount of insulation needed.

Where the ceiling space below the roof is used as the return air plenum, it is considered part of the conditioned space. In this instance, the envelope boundary for the roof and ceiling construction is located at the roof.

The direction of heat flow stated should not be taken as the only direction in which any insulating properties operate but it is a statement of the prominent direction for that particular climate zone. It is assumed that materials, be they construction materials or insulating materials, will also have insulating properties in the other direction. For a residential building, the night time direction is important as the building is most likely to be occupied at that time and the outside temperature likely to be the lowest of the day.

The Total R-Value in J4D4(1) is dependent on the climate zone.

As with walls, the effect of thermal bridging must be taken into account when determining if the minimum R-Value of a roof has been achieved. In some cases, thermal breaks will be necessary to achieve compliance.

A thermal break may be provided by materials such as timber or expanded polystyrene strips, plywood or bulk insulation. Reflective insulation alone is not suitable for use as a thermal break because it requires an adjoining airspace to achieve the specified R-Value.

The weight of roof or ceiling insulation needs to be considered in the selection of plasterboard, plasterboard fixings and building framing.

There may be instances where there is a loss of ceiling insulation because of downlights, fans and other penetrations. In these circumstances it is the responsibility of designers to determine how they will achieve the required Total R-Value given the construction of the roof and the penetrations.

Details of the Total R-Values of typical constructions are provided in Figures J4D4a to J4D4g and Tables J4D4a to J4D4g.

Typical construction

The Total R-Value of the basic roof and ceiling has been determined by adding together the material R-Values of the outdoor air film, roof cladding, roof airspace, ceiling sheet lining and internal air film.

The Total R-Value of the roof and ceiling materials may need to be adjusted if other building elements, such as sarking, are to also be installed.

Note that it should not be assumed that these figures are representative of all construction scenarios. For example the spacing of framing members, the presence of roof lights or the specific type of frame could all affect the actual Total R- Value by creating thermal bridging between elements or by compressing insulation. If following a Deemed-to-Satisfy compliance pathway, the code requires in J4D3(5) that AS/NZ 4859.2 be used to calculate the Total R-Value of a building’s envelope.

Insulation can be installed in the roof, the ceiling, or a combination of both, provided the required thermal performance is achieved and other aspects of the building’s integrity are not compromised. It should be noted that the thermal performance of the roof may vary depending on the position of the insulation, the climatic conditions, the design of the building and the way in which it is operated. For example, althoughnot recognised in the values,insulation installed underthe roof, rather than on the ceiling,in a building with a large roof space in a cold climate, or when a room is being air-conditioned, may be less effective because of the additional volume of roof airspace that would need to be heated or cooled.

For a material that is not listed as an item in the figure below, other than air, the R-Value may be determined by dividing the thickness of the item in metres by the thermal conductivity in W/m.K (typical values are described in Specification 36).

There are a number of different insulation products that may be used to achieve the minimum added R-Value. Care should be taken to ensure that the choice made is appropriate for the construction and climate conditions. For instance, in some climate zones, an impermeable insulation sheet needs to be installed with due consideration of condensation and associated interaction with adjoining building materials.

Notes to Tables and Figures

  1. The R-Value of an item, other than an airspace, air film or air cavity, may be increased in proportion to the increased thickness of the item.
  2.  The Total R-Value of a form of construction may be increased by the amount that the R-Value of an individual item is increased, except where the item is thermally bridged.
  3.  Where an airspace is filled, the R-Value listed for the airspace must be deducted from the Total R-Value of the roof construction.
  4. For information on a roof space that is considered to be ventilated, see S36C2(4).

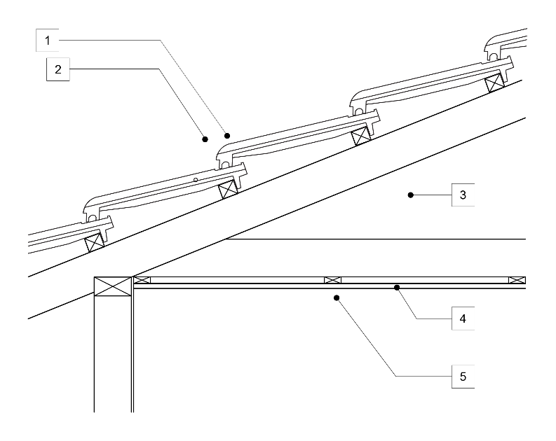
Figure J4D4a: Roof 15° to 45° pitch—horizontal ceiling—metal cladding

Image
Figure J4D4a: Roof 15° to 45° pitch—horizontal ceiling—metal cladding

Table J4D4a: R-Values for items depicted in Figure J4D4a

Item no.DescriptionR-Value unventilated R-Value ventilated 
  UpDownUpDown
1.Outdoor air film(7 m/s)0.040.040.040.04
2.Metal cladding0.000.000.000.00
3.Roof airspace (non-reflective)0.180.280.000.46
4.Plasterboard gypsum (10 mm, 880 kg/m3)0.060.060.060.06
5.Indoor air film(still air)0.110.160.110.16
Total R-Value 0.390.540.210.72

Figure J4D4b: Roof 15° to 45° pitch—horizontal ceiling—clay tiles 19 mm

Image
Figure J4D4b: Roof 15° to 45° pitch—horizontal ceiling—clay tiles 19 mm

Table J4D4b: R-Values for items depicted in Figure J4D4b

Item no.DescriptionR-Value unventilated R-Value ventilated 
  UpDownUpDown
1.Outdoor air film(7 m/s)0.040.040.040.04
2.Roof tile, clay or concrete (1922 kg/m3)0.020.020.020.02
3.Roof airspace (non-reflective)0.180.280.000.46
4.Plasterboard gypsum (10 mm, 880 kg/m3)0.060.060.060.06
5.Indoor air film(still air)0.110.160.110.16
Total R-Value 0.410.560.230.74

Figure J4D4c: Roof 15° to 45° pitch—cathedral ceiling—10 mm plaster on top of rafters—metal external cladding

Image
Figure J4D4c: Roof 15° to 45° pitch—cathedral ceiling—10 mm plaster on top of rafters—metal external cladding

Table J4D4c: R-Values for items depicted in Figure J4D4c

Item no.DescriptionR-Value unventilated
UpDown
1.Outdoor airfilm (7 m/s)0.040.04
2.Metal cladding0.000.00
3.Roof airspace (30 mm to 100 mm, non-reflective)0.150.18
4.Plasterboard gypsum(10 mm, 880 kg/m3)0.060.06
5.Indoor air film (still air)0.110.16
Total R-Value0.360.42

Figure J4D4d: Roof 15° to 45° pitch—cathedral ceiling—10 mm plaster on top of rafters—tiles external cladding

Image
Figure J4D4d: Roof 15° to 45° pitch—cathedral ceiling—10 mm plaster on top of rafters—tiles external cladding

Table J4D4d: R-Values for items depicted in Figure J4D4d

Item no.DescriptionR-Value unventilated
UpDown
1.Outdoor airfilm (7 m/s)0.040.04
2.Roof tile, clay or concrete (1922 kg/m3)0.020.02
3.Roof airspace (30 mm to 100 mm, non-reflective)0.150.18
4.Plasterboard gypsum(10 mm, 880 kg/m3)0.060.06
5.Indoor air film (still air)0.110.16
Total R-Value 0.380.44

 

Figure J4D4e:    Skillion roof less than 5° pitch—10 mm plaster below rafters—metal external cladding

Image
Figure J4D4e: Skillion roof less than 5° pitch—10 mm plaster below rafters—metal external cladding

Table J4D4e: R-Values for items depicted in Figure J4D4e

Item no.DescriptionR-Value unventilated
UpDown
1.Outdoor airfilm (7 m/s)0.040.04
2.Metal cladding0.000.00
3.Roof airspace (30 mm to 100 mm, non-reflective)0.150.22
4.Plasterboard gypsum(10 mm, 880 kg/m3)0.060.06
5.Indoor air film (still air)0.110.16
Total R-Value0.360.48

Figure J4D4f: Skillion roof 5° to 15° pitch—10 mm plaster on top of rafters—metal external cladding 

Image
Figure J4D4f: Skillion roof 5° to 15° pitch—10 mm plaster on top of rafters—metal external cladding

Table J4D7f: R-Values for items depicted in Figure J4D7f

Item no.DescriptionR-Value
UpDown
1.Indoor air film(still air)0.110.16
2.Solid concrete (150 mm, 2400kg/m3)0.100.10
3.Ground thermal resistance--
Total R-Value0.180.23

Figure J4D4g: 100 mm solid concrete roof to 5° pitch—10 mm plaster suspended ceiling—applied ex- ternal waterproof membrane

Image
Figure J4D4g: 100 mm solid concrete roof to 5° pitch—10 mm plaster suspended ceiling—applied ex- ternal waterproof membrane

Table J4D4g: R-Values for items depicted in Figure J4D4g

Item no.DescriptionR-Value unventilated
UpDown
1.Outdoor airfilm (7 m/s)0.040.04
2.Waterproof membrane, rubber synthetic (4 mm, 961kg/m3)0.030.03
3.Solid concrete (100 mm, 2400kg/m3)0.070.07
4.Ceiling airspace (100 mm to 300 mm, non-reflective)0.150.22
5.Plasterboard gypsum (10 mm, 880 kg/m3)0.060.06
6.Indoor air film (still air)0.110.16
Total R-Value0.460.58

Roof lights must have—

  1. a total area of not more than 5% of the floor area of the room or space served; and
  2. transparent and translucent elements, including any imperforate ceiling diffuser, with a combined performance of—
    1. for Total system SHGC, in accordance with Table J4D5; and
    2. for Total system U-Value, not more than U3.9.
Table J4D5 Roof lights – Total system SHGC
Roof light shaft index Note 1 Total area of roof lights up to 3.5% of the floor area of the room or space Total area of roof lights more than 3.5% and up to 5% of the floor area of the room or space
<1.0 ≤ 0.45 ≤ 0.29
≥ 1.0 to < 2.5 ≤ 0.51 ≤ 0.33
≥ 2.5 ≤ 0.76 ≤ 0.49
Table Notes
  1. The roof light shaft index is determined by measuring the distance from the centre of the shaft at the roof to the centre of the shaft at the ceiling level and dividing it by the average internal dimension of the shaft opening at the ceiling level (or the diameter for a circular shaft) in the same units of measurement.
  2. The area of a roof light is the area of the roof opening that allows light to enter the building.
  3. The total area of roof lights is the combined area for all roof lights serving the room or space.

To specify requirements for roof lights and provide a reasonable distribution of the roof lights.

J4D5 has values for Total System SHGC and Total System U-Values, which are expressed in accordance with the Australian Fenestration Rating Council (AFRC) protocol.

The provisions of J4D5(b)(i) require roof lights that form part of the envelope, other than of a sole-occupancy unit of a Class 2 building or a Class 4 part of a building, comply with Table J4D5.

The size of roof lights is limited to no more than 5% of the floor area of the space served in order to ensure that the thermal performance of a roof is not compromised to too great an extent. Larger roof lights will need to achieve compliance through a Verification Method or as a Performance Solution.

Table J4D5 provides the Total System SHGC requirements that satisfy J4D5(a).

NCC Blurbs

(1) The Total System U-Value of wall-glazing construction, including wall-glazing construction which wholly or partly forms the envelope internally, must not be greater than—

  1. for a Class 5, 6, 7, 8 or 9b building or a Class 9a building other than a ward area, U2.0; and
  2. for a Class 3 or 9c building or a Class 9a ward area
    1. in climate zones 1, 3, 4, 6 or 7, U1.1; or
    2. in climate zones 2 or 5, U2.0; or
    3. in climate zone 8, U0.9.

(2) The Total System U-Value of display glazing must not be greater than U5.8.

(3) The Total System U-Value of wall-glazing construction must be calculated in accordance with Specification 37.

(4) Wall components of a wall-glazing construction must achieve a minimum Total R-Value of—

  1. where the wall is less than 80% of the area of the wall-glazing construction, R1.0; or
  2. where the wall is 80% or more of the area of the wall-glazing construction, the value specified in NSW Table J4D6a.

(5) The solar admittance of externally facing wall-glazing construction, excluding wall-glazing construction which is wholly internal, must not be greater than—

  1. for a Class 5, 6, 7, 8 or 9b building or a Class 9a building other than a ward area, the values specified in NSW Table J4D6b; and
  2. for a Class 3 or 9c building or a Class 9a ward area, the values specified in NSW Table J4D6c.

(6) The solar admittance of a wall-glazing construction must be calculated in accordance with Specification 37.

(7) The Total system SHGC of display glazing must not be greater than 0.81 divided by the applicable shading factor specified in S37C7.

Insert NSW table (NSW J4D6a) J4D6 as follows:
NSW Table NSW J4D6a: Minimum wall Total R-Value - Wall area 80% or more of wall-glazing construction area
Climate zone Class 5, 6, 7, 8 or 9b building or a Class 9a building other than a ward area Class 3 or 9c building or Class 9a ward area
1 2.4 3.3
2 1.4 1.4
3 1.4 3.3
4 1.4 2.8
5 1.4 1.4
6 1.4 2.8
7 1.4 2.8
8 1.4 3.8
Insert NSW table (J4D6b) J4D6 as follows:
NSW Table J4D6b: Maximum wall-glazing construction solar admittance - Class 5, 6, 7, 8 or 9b building or Class 9a building other than a ward area
Climate zone Eastern aspect solar admittance Northern aspect solar admittance Southern aspect solar admittance  Western aspect solar admittance
1 0.12 0.12 0.12 0.12
2 0.13 0.13 0.13 0.13
3 0.16 0.16 0.16 0.16
4 0.13 0.13 0.13 0.13
5 0.13 0.13 0.13 0.13
6 0.13 0.13 0.13 0.13
7 0.13 0.13 0.13 0.13
8 0.2 0.2 0.42 0.36
Table J4D6c Maximum wall-glazing construction solar admittance - Class 3 or 9c building or Class 9a ward area
Climate zone Eastern aspect solar admittance Northern aspect solar admittance Southern aspect solar admittance Western aspect solar admittance
1 0.07 0.07 0.10 0.07
2 0.10 0.10 0.10 0.10
3 0.07 0.07 0.07 0.07
4 0.07 0.07 0.07 0.07
5 0.10 0.10 0.10 0.10
6 0.07 0.07 0.07 0.07
7 0.07 0.07 0.08 0.07
8 0.08 0.08 0.08 0.08
NCC Title
Walls and glazing
NCC State
NSW
NCC Variation Type
Replacement
NCC SPTC Current
Walls and glazing

(1) The Total System U-Value of wall-glazing construction, including wall-glazing construction which wholly or partly forms the envelope internally, must not be greater than—

  1. for a Class 2 common area, a Class 5, 6, 7, 8 or 9b building or a Class 9a building other than a ward area, U2.0; and
  2. for a Class 3 or 9c building or a Class 9a ward area
    1. in climate zones 1, 3, 4, 6 or 7, U1.1; or
    2. in climate zones 2 or 5, U2.0; or
    3. in climate zone 8, U0.9.

(2) The Total System U-Value of display glazing must not be greater than U5.8.

(3) The Total System U-Value of wall-glazing construction must be calculated in accordance with Specification 37.

(4) Wall components of a wall-glazing construction must achieve a minimum Total R-Value of—

  1. where the wall is less than 80% of the area of the wall-glazing construction, R1.0; or
  2. where the wall is 80% or more of the area of the wall-glazing construction, the value specified in Table J4D6a.

(5) The solar admittance of externally facing wall-glazing construction, excluding wall-glazing construction which is wholly internal, must not be greater than—

  1. for a Class 2 common area, a Class 5, 6, 7, 8 or 9b building or a Class 9a building other than a ward area, the values specified in Table J4D6b; and
  2. for a Class 3 or 9c building or a Class 9a ward area, the values specified in Table J4D6c.

(6) The solar admittance of a wall-glazing construction must be calculated in accordance with Specification 37.

(7) The Total system SHGC of display glazing must not be greater than 0.81 divided by the applicable shading factor specified in S37C7.

Table J4D6a Minimum wall Total R-Value - Wall area 80% or more of wall-glazing construction area
Climate zone Class 2 common area, Class 5, 6, 7, 8 or 9b building or a Class 9a building other than a ward area Class 3 or 9c building or Class 9a ward area
1 2.4 3.3
2 1.4 1.4
3 1.4 3.3
4 1.4 2.8
5 1.4 1.4
6 1.4 2.8
7 1.4 2.8
8 1.4 3.8
Table J4D6b Maximum wall-glazing construction solar admittance - Class 2 common area, Class 5, 6, 7, 8 or 9b building or Class 9a building other than a ward area
Climate zone Eastern aspect solar admittance Northern aspect solar admittance Southern aspect solar admittance  Western aspect solar admittance
1 0.12 0.12 0.12 0.12
2 0.13 0.13 0.13 0.13
3 0.16 0.16 0.16 0.16
4 0.13 0.13 0.13 0.13
5 0.13 0.13 0.13 0.13
6 0.13 0.13 0.13 0.13
7 0.13 0.13 0.13 0.13
8 0.2 0.2 0.42 0.36
Table J4D6c Maximum wall-glazing construction solar admittance - Class 3 or 9c building or Class 9a ward area
Climate zone Eastern aspect solar admittance Northern aspect solar admittance Southern aspect solar admittance Western aspect solar admittance
1 0.07 0.07 0.10 0.07
2 0.10 0.10 0.10 0.10
3 0.07 0.07 0.07 0.07
4 0.07 0.07 0.07 0.07
5 0.10 0.10 0.10 0.10
6 0.07 0.07 0.07 0.07
7 0.07 0.07 0.08 0.07
8 0.08 0.08 0.08 0.08

To specify the requirements for walls and windows, both external and internal, that are a part of the envelope.

J4D6(1) contains the basic Total System U-Values and Total R-Values that need to be achieved by wall-glazing construction forming the envelope of a building. Importantly, this applies to both external and internal wall-glazing construction that form part of the building envelope. J4D6(5) contains the basic solar admittance values that must not be exceeded by externally-facing wall-glazing construction. Importantly, this subclause only applies to external wall-glazing construction forming part of the building envelope.

There are two calculation methods for determining compliance with the Total System U-Value and solar admittance requirements in J4D6(1) and (5). The first method involves assessing wall-glazing construction facing a single aspect (or direction). The second method involves assessing together the wall-glazing construction facing multiple aspects. These methods are detailed in Specification 37.

(1) A floor must achieve the Total R-Value specified in Table J4D7.

(2) For the purposes of (1), a slab-on-ground that does not have an in-slab heating or cooling system is considered to achieve a Total R-Value of R2.0, except—

  1. in climate zone 8; or
  2. a Class 3, Class 9a ward area or Class 9b building in climate zone 7 that has a floor area to floor perimeter ratio of less than or equal to 2.

(3) A floor must be insulated around the vertical edge of its perimeter with insulation having an R-Value greater than or equal to 1.0 when the floor—

  1. is a concrete slab-on-ground in climate zone 8; or
  2. has an in-slab or in-screed heating or cooling system, except where used solely in a bathroom, amenity area or the like.

(4) Insulation required by (3) for a concrete slab-on-ground must—

  1. be water resistant; and
  2. be continuous from the adjacent finished ground level—
    1. to a depth not less than 300 mm; or
    2. for the full depth of the vertical edge of the concrete slab-on-ground.
Table J4D7 Floors – Minimum Total R-Value
Location Climate zone 1— upwards heat flow Climate zones 2 and 3 — upwards and downwards heat flow Climate zones 4, 5, 6 and 7 — downwards heat flow Climate zone 8 — downwards heat flow
A floor without an in-slab heating or cooling system 2.0 2.0 2.0 3.5
A floor with an in-slab heating or cooling system 3.25 3.25 3.25 4.75
Table Notes

For the purpose of calculating the Total R-Value of a floor, the sub-floor and soil R-Value must be calculated in accordance with Specification 39 or Section 3.5 of CIBSE Guide A.

To outline the minimum insulation requirements for suspended floors and concrete slabs on ground.

For a floor that is part of the building envelope other than a sole-occupancy unit in a Class 2 building or Class 4 part of a building, the required Total R-Values are in Table J4D7. For the purposes of calculating the Total R-Value of a floor, the R- Value attributable to an in-slab or in-screed heating or cooling system is not included.

J4D7(2) and (3) apply to all concretes lab on ground floors including those in sole-occupancy units in a Class 2 building, or Class 4 part of a building as described in J2D2.

J4D7(2) requires all floors with an embedded in-slab or in-screed heating or cooling system to have additional insulation installed around the vertical edge of the perimeter. This provision aims to limit heat loss or gain through the perimeter of the slab.

Regarding the installation of slab edge insulation in J4D7(3), care should be taken to ensure that the insulation is compatible with the type of termite management system selected.

Typical construction

The figures below outline the thermal performance of some of the more common forms of floor construction. For a material that is not listed in the figure below, other than air, the material R-Value may be determined by dividing the thickness of the item in metres by the thermal conductivity in W/m.K (typical values are described in Specification 36).

For the purposes of calculating the Total R-Value of a floor, the R-Value attributable to an in-slab or in-screed heating or cooling system is not included.

Note that it should not be assumed that these figures are representative of all construction scenarios. For example, the spacing of stumps, or the specific type of frame could all affect the actual Total R-Value by creating thermal bridging between elements or by compressing insulation. If following a Deemed-to-Satisfy compliance pathway, Total R-Value must be calculated using the methods prescribed in AS/NZS 4859.2 to properly account for these effects.

Notes to Tables and Figures

  1. The R-Value of an item, other than an airspace, air film or air cavity, may be increased in proportion to the increased thickness of the item.
  2. The Total R-Value of a form of construction maybe increased by the amount that an individual item is increased.
  3.  For floor types located on soil or over a sub-floor space, the Total R-Value should be calculated in accordance with Specification 39 or Section 3.5 of CIBSE Guide A.
  4.  Where a reflective building membrane is attached beneath the floor with a 100 mm reflective airspace, add R0.38 for heat flow up and R1.14 for heat flow down.
  5.  The addition of 10 mm of render to the ceiling of a suspended internal concrete floor will increase the Total R-Value by 0.02.
  6.  Solid concrete slab includes concrete beam and infill floors and concrete precast permanent formwork panels. For the purposes of calculating the Total R-Value of a floor, the R-Value attributable to an in-slab or in-screed heating or cooling system is ignored.
  7.  Where an airspace is filled, the R-Value listed for the airspace must be deducted from the Total R-Value of the floor construction.

Figure J4D7a: Timber internal floor, 10 mm internal plaster

Image
Figure J4D7a: Timber internal floor, 10 mm internal plaster

Table J4D7a: R-Values for items depicted in Figure J4D7a

Item no.DescriptionR-Value
UpDown
1.Indoor air film (still air)0.110.16
2.Particleboard flooring (19 mm, 640 kg/m3)0.150.15
3.Floor airspace, 100 mm to 300 mm (non-reflective)0.150.22
4.Plasterboard, gypsum (10 mm, 880 kg/m3)0.060.06
5.Indoor air film (still air)0.110.16
Total R-Value0.580.75

Figure J4D7b:    Timber, suspended ground floor, open subfloor

 

Image
Figure J4D7b:    Timber, suspended ground floor, open subfloor

Table J4D7b: R-Values for items depicted in Figure J4D7b

Item no.DescriptionR-Value
UpDown
1.Indoor air film(still air)0.110.16
2.Particleboard flooring (19 mm, 640 kg/m3)0.150.15
3.Outdoor air film(still air)0.040.04
Total R-Value0.300.35

Figure J4D7c:    Solid concrete suspended slab

Image
Figure J4D7c: Solid concrete suspended slab

Table J4D7c: R-Values for items depicted in Figure J4D7c

Item no.DescriptionR-Value
UpDown
1.Indoor air film(still air)0.110.16
2.Solid concrete (150 mm, 2400kg/m3)0.100.10
3.Outdoor air film(still air)0.040.04
Total R-Value0.250.30

Figure J4D7d: 150 mm hollow-core concrete planks

Image
Figure J4D7d: 150 mm hollow-core concrete planks

Table J4D7d: R-Values for items depicted in Figure J4D7d

Item no.DescriptionR-Value
UpDown
1.Indoor air film(still air)0.110.16
2.Concrete topping (60 mm, 2400 kg/m3)0.040.04
3.Hollow-core concrete planks (150 mm, 1680 kg/m3,30% cores)0.140.14
4.Outdoor air film(7 m/s)0.040.04
Total R-Value0.330.38

Figure J4D7e:    100 mm solid concrete slab-on-ground

Image
Figure J4D7e:    100 mm solid concrete slab-on-ground

Table J4D7e: R-Values for items depicted in Figure J4D7e

Item no.DescriptionR-Value
UpDown
1.Indoor air film(still air)0.110.16
2.Solid concrete (100 mm, 2400kg/m3)0.070.07
3.Ground thermal resistance--
Total R-Value0.180.23

Figure J4D7f:    150 mm solid concrete slab-on-ground

Image
Figure J4D7f:    150 mm solid concrete slab-on-ground

Table J4D7f: R-Values for items depicted in Figure J4D7f

Item no.DescriptionR-Value
UpDown
1.Indoor air film(still air)0.110.16
2.Solid concrete (150 mm, 2400kg/m3)0.100.10
3.Ground thermal resistance--
Total R-Value0.180.23